Planning Committee considers 1837 and 1849 Maple Grove Road proposal June 23
La version française suit The Zoning By-Law amendment proposal from Mattamy Homes at 1837 and 1849 Maple Grove Road will go to Planning Committee on June 23. The application would rezone the properties to permit Mattamy’s construction of 90 townhomes on four private...
Committee approves spending plan for affordable housing
La version française suit The City’s Planning Committee today approved a spending plan for more than $33.7 million – in part to create new affordable housing through partnerships with housing providers, and in part to stabilize existing projects currently under...
NOTEBOOK: Changes are needed to the 6310 Hazeldean development proposal
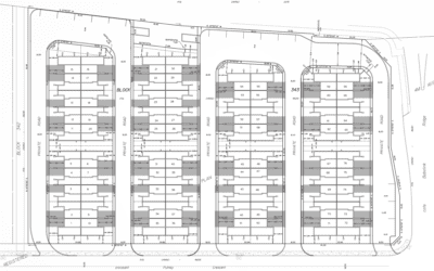
La version française suit At the beginning of May, the City received an application for a zoning by-law amendment at 6310 Hazeldean Road, a vacant piece of land just west of Carp Road and north of the Crossing Bridge neighbourhood. The developer, Hazeldean...
6310 Hazeldean Road: Zoning By-Law Amendment
Our office hosted a virtual public information session for this application on Tuesday, May 31, 2022. You can watch a video of the meeting below. https://youtu.be/ncEMw2jwefI The City of Ottawa has received zoning by-law amendment application from Hazeldean...
1364-1370 Stittsville Main Street: Site Plan Control Application
Our office hosted a virtual public information session for this application on Thursday, May 19, 2022. You can watch the video here: https://youtu.be/eDEvBfshp9M The City has received a Site Plan Control application for 1364, 1368, and 1370 Stittsville...
MAY 2: Pre-construction meeting for development at 6015 Fernbank
Construction is beginning soon on a development at 6015 Fernbank Road, where Taggart is building a new housing subdivision. Our office, in coordination with Taggart, is hosting a virtual public pre-construction meeting on Monday, May 2, 2022 at 7:00pm via Zoom. Tartan...
Site Plan Application for new CEPEO elementary school at 755 Cope Drive
The City has received a Site Plan Control application from Conseil des écoles publiques de l'Est de l'Ontario (CEPEO) to build a new French public elementary school at 755 Cope Drive in the Fernbank community. The site for the school was established in the Fernbank...
Q&A: Are homes being built on the land west of Timbermere?
La version française suit Several residents have asked about land west of Timbermere, and whether or not it is being developed for a new neighbourhood. The quick answer: There is no current proposal for development, but it is land that has been identified as a...
TRANSCRIPT: Councillor Glen on Ontario’s new housing legislation
La version française suit On March 30th, the Province of Ontario unveiled the first part of its plan to address rising home costs, taking aim at home construction approval delays at the municipal level as a cause for increased home prices. Councillor Glen was recently...
NOTEBOOK: What’s next for the Hazeldean Crossing development
La version française suit For the last six weeks, I've been speaking with many people who were planning to move into the new homes being built at the Hazeldean Crossings development. They're in an incredibly difficult situation after the builder pulled the plug on the...
585 Bobolink Ridge: Site Plan Control Application
La version française suit The City of Ottawa has received a Site Plan Control application from Taggart to permit the construction of a planned unit development at 585 Bobolink Ridge. The development will involve eight new three-storey buildings containing 76...
NOTEBOOK: The Ontario Housing Affordability Task Force
La version française suit Recommended resources: March 29: Councillor Chat with Saide Sayah on Ottawa's affordable housing strategy Report of the Ontario Housing Affordability Task Force City of Ottawa response to the Task Force report AMO: An integrated approach to...
Committee approves standard to advance sustainable building design
La version française suit The City’s Planning Committee today approved a plan to establish a High-Performance Development Standard for new Ottawa developments. Buildings are a major source of greenhouse gas emissions, and the metrics that make up the new standard...
1835 Stittsville Main Street: Zoning By-Law Amendment
La version française suit The City has received a zoning by-law amendment application to allow two new single detached homes at 1835 Stittsville Main Street. The 0.5 hectare property is currently within Ward 21 (Councillor Scott Moffatt) but will be within Ward 6...
1498 Stittsville Main Street: Site Plan Control Application
La version française suit The City has received a Site Plan Control application from Dunrobin Distilleries to construct a two-storey micro-distillery at 1498 Stittsville Main Street/8 Manchester Street, just north of Abbott Street. The new building will have retail...














