NOTEBOOK: What’s next for the Hazeldean Crossing development
La version française suit For the last six weeks, I've been speaking with many people who were planning to move into the new homes being built at the Hazeldean Crossings development. They're in an incredibly difficult situation after the builder pulled the plug on the...
585 Bobolink Ridge: Site Plan Control Application
La version française suit The City of Ottawa has received a Site Plan Control application from Taggart to permit the construction of a planned unit development at 585 Bobolink Ridge. The development will involve eight new three-storey buildings containing 76...
NOTEBOOK: The Ontario Housing Affordability Task Force
La version française suit Recommended resources: March 29: Councillor Chat with Saide Sayah on Ottawa's affordable housing strategy Report of the Ontario Housing Affordability Task Force City of Ottawa response to the Task Force report AMO: An integrated approach to...
Committee approves standard to advance sustainable building design
La version française suit The City’s Planning Committee today approved a plan to establish a High-Performance Development Standard for new Ottawa developments. Buildings are a major source of greenhouse gas emissions, and the metrics that make up the new standard...
1835 Stittsville Main Street: Zoning By-Law Amendment
La version française suit The City has received a zoning by-law amendment application to allow two new single detached homes at 1835 Stittsville Main Street. The 0.5 hectare property is currently within Ward 21 (Councillor Scott Moffatt) but will be within Ward 6...
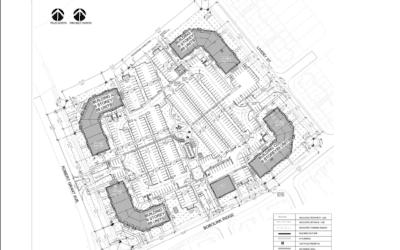
1498 Stittsville Main Street: Site Plan Control Application
La version française suit The City has received a Site Plan Control application from Dunrobin Distilleries to construct a two-storey micro-distillery at 1498 Stittsville Main Street/8 Manchester Street, just north of Abbott Street. The new building will have retail...
UPDATE: 360 Bobolink Ridge development proposal
La version française suit Last fall, the City received a site plan control application from Broadstreet Properties to construct four six-storey apartment buildings and a two-storey commercial building at 360 Bobolink Ridge, in a project called "Blackstone Village". In...
Shea Village Development application heads to Planning Committee March 10
La version française suit The City of Ottawa Planning Committee will consider a Zoning By-Law amendment at the addresses of 5957 and 5969 Fernbank Road during their meeting on Thursday, March 10, 2022. The amendment would allow the development of the Shea Village...
620 Bobolink: Traffic and pedestrian safety analysis
La version française suit In 2021, we hosted an information meeting to discuss Richcraft's development proposal for 620 Bobolink Ridge. It’s currently a vacant piece of land, located along the west side of Robert Grant in the CRT Westwood subdivision between Bobolink...
Planning Committee to consider Zoning By-Law Amendment for 6015 Fernbank Road on February 10
La version française suit NOTE: This item has been deferred and will be heard at a future meeting - tentatively February 24, 2022. The City's Planning Committee will consider a Zoning By-Law amendment – Part of 6015, 6021 and 6041 Fernbank (known as the "Tartan...
1927 Maple Grove Road: Zoning By-Law Amendment and Plan of Subdivision
UPDATE 2022-01-11: Statutory public meeting The City of Ottawa will hold a Public Meeting on Thursday, January 20, 2022 at 6:00 PM through Zoom (video conferencing) to discuss this proposed plan of subdivision. We encourage you to attend to learn more about the...
360 Bobolink Ridge: Site Plan Control Application
https://www.youtube.com/watch?v=wEKR25TzyJ8 Originally published November 5, 2021. UPDATE 2021-11-26 We’re hosting a virtual public information session for the development application at 360 Bobolink Ridge on Wednesday, December 15 at 7:00 pm....
Planning Committee focus turns to 15-minute neighbourhoods
La version française suit The City’s Planning Committee today received a report on the state of 15-minute neighbourhoods in Ottawa, establishing baseline scoring for properties across the city. The new Official Plan introduced the concept of 15-minute neighbourhoods,...
1037 Carp Road: Site Plan Control Application
https://youtu.be/rmlwYUhpZuE La version française suit UPDATE 2021-11-17: Our office will be hosting a virtual public information session for this development application on Tuesday, November 30, at 6:30 pm 7:00pm. This is your opportunity to hear about the...
Q&A: 360 Bobolink Ridge development proposal
La version française suit The City has received a site plan control application from Broadstreet Properties to construct four six-storey apartment buildings and a two-storey commercial building at 360 Bobolink Ridge, in a project called "Blackstone Village". Thanks to...














