SURVEY: How can we improve Ottawa’s transportation network?
La version française suit Ottawa keeps growing and growing. Our population reached 1 million earlier this year and there's no end to that growth in sight. Stittsville and Kanata continue to be among the fastest-growing areas of the City, and we're all feeling the...
Zoning by-law amendment application for 840 Paseana Place
La version française suit The City has received zoning by-law amendment application for 840 Paseana Place in the future Blackstone South community, located near Cope Drive. The land is shown as "Block 360" in the map above, located next to a community park just north...
Ottawa’s official plan is innovative, but will require a shift in thinking
Originally published in the Ottawa Citizen, December 18, 2019. Photo credit: Ananya Vaghela La version française suit Ottawa Council’s most important project this term is the official plan review and last Wednesday, council approved the policy directions that will...
UPDATE: Revised development application for 5924 and 5938 Hazeldean Road
La version française suit Last week the city received a revised site plan and zoning application for 5924 and 5938 Hazeldean Road, which includes a housing development at the corner of Victor Street where the old gas station is currently located. I want to make it...
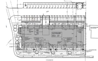
Public School Board submits site plan for new Fernbank elementary school
La version française suit The City has received a Site Plan Control application for a new school at 480 Cope Drive, between Continental Avenue and Rouncey Road. The Ottawa-Carleton District School Board wants to build a two-storey elementary school on the site to...
Site plan application for 1140 Terry Fox Drive (at Cope)
(le français suit) The City has received a site plan control application to build a retail plaza at 1140 Terry Fox Drive, located at the corner of Cope Drive just north of the Walmart shopping area in Stittsville. The project would include three single-storey retail...
What we heard at our Official Plan workshop in Stittsville
La version française suit Thanks to everyone who joined us on October 24 to take part in our Official Plan workshop. Over 60 residents attended and heard a presentation from City staff followed by a hands-on session to share feedback and ideas about how Ottawa should...
POSTPONED: Community information meeting for 1000 Robert Grant zoning application
UPDATE (February 16): The public meeting has been rescheduled for March 3, 2020. More info... UPDATE (November 12) from City staff: The Community Information & Comment Session regarding the rezoning application for 1000 Robert Grant Avenue that was scheduled for...
New retail space proposed for 5705 Hazeldean Road in the Shoppes at Fairwinds
The City has received a Site Plan Control application for 5705 Hazeldean Road. That's at the Shoppes of Fairwinds retail area at the northeast corner of Hazeldean Road and Huntmar Drive. The applicant wants to add more commercial space near the Food Basics and Toys R...
Zoning by-law amendment application for apartment buildings at 1000 Robert Grant
(Le français suit) The City has received a zoning by-law amendment application from Lépine Corp for 1000 Robert Grant Avenue, just south of Abbott Street. A technical summary of the application is below, and there are additional documents available on the City's...
Mixed use building proposed for Hazeldean at Springbrook
Le français suit The City of Ottawa has received a Site Plan Control application for 5986-5992 Hazeldean Road at the corner of Springbrook. It's for a 3-storey mixed use building, with commercial office space on the first two storeys and six residential units on the...
UPDATE: Huntington updates their proposal for 1531 Stittsville Main
Le français suit Huntington Properties has submitted a revised site plan application for their property at 1531 Stittsville Main Street, just south of Orville. This is for a 4-storey mixed used building with retail on the ground floor and apartments on the upper three...
New residential development proposal for 1919 Maple Grove Road
Le français suit The City of Ottawa has received a concurrent Plan of Subdivision and Zoning By-law Amendment application for a residential subdivision at 1919 Maple Grove Road, just west of the existing Fairwinds North community. The proposal includes 36...
Stittsville applications at the Committee of Adjustment (Sept 4)
(Le français suit) The owner of 11 Carleton-Cathcart has applied for two minor variances to the Committee of Adjustment. The first application seeks to demolish the existing home and shed and subdivide the property into two separate parcels in order to build two...
Site plan proposal gives a first look at Stittsville’s future public high school
(Le français suit) I've been following efforts to build a public high school in this community ever since I moved here with my young family nearly ten years ago. At the time our oldest daughter was entering Junior Kindergarten, and we thought for sure that by the...













