La version française suit
The City of Ottawa has received a Zoning By-law Amendment and Site Plan Control application for the property at 1412 Stittsville Main Street, located on west side of Stittsville Main Street between Warner Colpitts Lane and Mulkin Street.
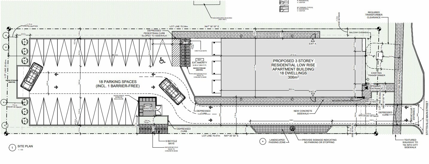
The applicant is proposing to build a three-storey, 18-unit apartment building, which would include 4 studio apartments, 10 one-bedroom apartments and 4 one-bedroom apartments with a den. An outdoor amenity is proposed at the back of the building. A total of 18 parking spaces and 18 bicycle parking spaces are provided and also located at the back of the property. Parking would be accessed from a 3.8-metre access off Stittsville Main. The driveway has been designed with a landscaped passing lay-by so that cars travelling in opposite directions can use the access at the same time.
More information about the proposal is available on the City’s DevApps site:
- Zoning By-law Amendment: https://devapps.ottawa.ca/en/applications/D02-02-24-0035/details
- Site Plan Control: https://devapps.ottawa.ca/en/applications/D07-12-24-0167/details
Zoning By-law Amendment
The Zoning By-law provides controls for the use and type of development of all land in Ottawa. The Zoning By-law also sets specific requirements for development that must be followed. These include provisions for building heights, the number of parking spaces, and the size of front, side and rear yards.
The site is currently zoned TM9 H(15) (Traditional Mainstreet, Subzone 9, Maximum Height Limit of 15 metres). The proposed Zoning By-law Amendment seeks relief from the following provisions through a new site-specific zoning exception:
- Reduce minimum resident parking rate to 0.83 spaces per unit, whereas the Zoning By-law requires 1.2 spaces per unit.
- Reduce minimum visitor parking rate to 0.16 spaces per unit, whereas the Zoning By-law requires 0.2 spaces per unit.
- Reduce minimum aisle width to 6 metres, whereas the Zoning By-law requires 6.7 metres.
- Permit a driveway width of 3.8 metres, whereas the Zoning By-law requires a minimum width of 3 metres and a maximum width of 3.6 metres.
Staff’s evaluation and recommendations on the proposed amendment will be reviewed and either approved or rejected by the City’s Planning & Housing Committee and City Council.
Site Plan Control

The site plan control process allows the City to influence land development so that it is safe, functional and orderly. It is also used to ensure that the development standards approved by the City and other agencies are implemented and maintained. Building location, landscape treatment, pedestrian access, drainage control and parking layout are a few of the items addressed during review.
What’s next
This application has not been approved. City staff will be reviewing the application to ensure it complies with applicable provincial policy and city policy and by-laws. Councillor Glen will also be reviewing this application with his team.
While the Zoning By-law Amendment application will need final approval from City Council, under Bill 109 enacted by the Provincial government in 2022, City Council no longer has the final say on Site Plan Control approvals. Although councillors can provide feedback and comments, the final decision rests with City staff.
Stay informed
Register for future notifications about this application and provide your comments by contacting Colette Gorni at 613-580-2424, ext. 21239 or colette.gorni@ottawa.ca and including File No. D02-02-24-0035 / D07-12-24-0167 in the subject line. You can copy Councillor Glen at glen.gower@ottawa.ca.
Deadline for comments is June 4, 2025. Please note, comments will continue to be accepted and considered after the initial comment period due date noted above. However, comments received after the above date may not be reflected in the staff report.
1412, rue Stittsville Main : Modification du Règlement de zonage et demande de réglementation du plan d’implantation
La Ville d’Ottawa a reçu une demande de modification du Règlement de zonage et de réglementation du plan d’implantation pour la propriété située au 1412, rue Stittsville Main, située du côté ouest de la rue Stittsville Main, entre l’allée Warner Colpitts et la rue Mulkin.
Le requérant propose de construire un immeuble d’appartements de trois étages et de 18 logements, dont 4 studios, 10 appartements d’une chambre et 4 appartements d’une chambre avec salon. Une aire d’agrément est proposée à l’arrière de l’immeuble. Un total de 18 places de stationnement et 18 places de stationnement pour bicyclettes sont prévues, toutes situées à l’arrière de la propriété. L’accès au stationnement se ferait par une voie de 3,8 mètres située sur la rue Stittsville Main. L’entrée a été conçue avec une aire de stationnement paysagée, permettant aux véhicules circulant en sens opposé d’emprunter l’accès en même temps.
Pour en savoir plus sur cette proposition, veuillez consulter le site DemDam de la Ville :
- Modification du Règlement de zonage : https://devapps.ottawa.ca/fr/applications/D02-02-24-0035/details
- Réglementation du plan d’implantation : https://devapps.ottawa.ca/fr/applications/D07-12-24-0167/details
Modification du règlement de zonage
Le Règlement de zonage prévoit des contrôles à exercer pour l’utilisation et le type d’aménagement de tout le territoire d’Ottawa. Ce règlement définit aussi les exigences à respecter dans les projets d’aménagement. Il comprend entre autres des dispositions pour la hauteur des bâtiments, le nombre de places de stationnement, ainsi que la superficie des cours avant, latérales et arrière.
Le site est actuellement zoné TM9 H(15) [rue principale traditionnelle, sous-zone 9, hauteur maximale de 15 mètres]. La modification proposée au Règlement de zonage vise à déroger aux dispositions suivantes au moyen d’une nouvelle exception de zonage propre au site :
- Réduire le taux minimum de stationnement pour les résidents à 0,83 place par logement, alors que le Règlement de zonage exige 1,2 place par logement.
- Réduire le taux minimum de stationnement pour les visiteurs à 0,16 place par logement, alors que le Règlement de zonage exige 0,2 place par logement.
- Réduire la largeur minimale de l’allée à 6 mètres, alors que le Règlement de zonage exige 6,7 mètres.
- Autoriser une largeur d’entrée de 3,8 mètres, alors que le Règlement de zonage exige une largeur minimale de 3 mètres et une largeur maximale de 3,6 mètres.
L’évaluation et les recommandations du personnel sur la modification proposée seront examinées et approuvées ou rejetées par le Comité de la planification et du logement de la Ville et le Conseil municipal.
Réglementation du plan d’implantation

Le processus de réglementation du plan d’implantation permet à la Ville d’influer sur l’aménagement du territoire afin de veiller à ce que celui-ci soit sécuritaire, fonctionnel et harmonieux. Il sert également à garantir l’application et le respect des normes d’aménagement approuvées par la Ville et d’autres organismes. L’examen porte notamment sur l’emplacement des bâtiments, le traitement du paysage, l’accès piétonnier, la régulation du drainage et la disposition des stationnements.
Prochaines étapes
Cette demande n’a pas été approuvée. Le personnel de la Ville examinera la demande pour s’assurer qu’elle respecte les politiques applicables du gouvernement provincial, ainsi que les politiques et les règlements de la Ville. Le conseiller Glen Gower examinera également la demande avec son équipe.
Bien que la demande de modification du Règlement de zonage doive obtenir l’approbation finale du Conseil municipal, en vertu du projet de loi 109 adopté par le gouvernement provincial en 2022, le Conseil municipal n’a plus le dernier mot en ce qui concerne les approbations liées à la réglementation de plans d’implantation. Bien que les membres des conseils municipaux puissent faire des observations et fournir des commentaires, la décision finale appartient au personnel de la Ville.
Restez à l’affût
Inscrivez-vous pour recevoir les notifications futures concernant cette demande et faire part de vos commentaires en communiquant avec Colette Gorni au 613-580-2424, poste 21239, ou par courriel à l’adresse colette.gorni@ottawa.ca en ajoutant le numéro de dossier D02-02-24-0035/D07-12-24-0167 dans la ligne d’objet. Vous pouvez mettre le conseiller Glen en copie conforme à l’adresse glen.gower@ottawa.ca.
La date limite pour formuler des commentaires est fixée au 4 juin 2025. Veuillez prendre note que les commentaires continueront d’être acceptés et examinés après l’échéance indiquée ci-dessus. Toutefois, les commentaires reçus après cette date ne seront pas nécessairement pris en compte dans le rapport du personnel.