La version française suit
The City of Ottawa has received a Zoning By-law Amendment application for the properties at 5872, 5880, 5884 Hazeldean Road, and 7 Savage Drive, located along the south side of Hazeldean Road, between Savage Drive and Sweetnam Drive.
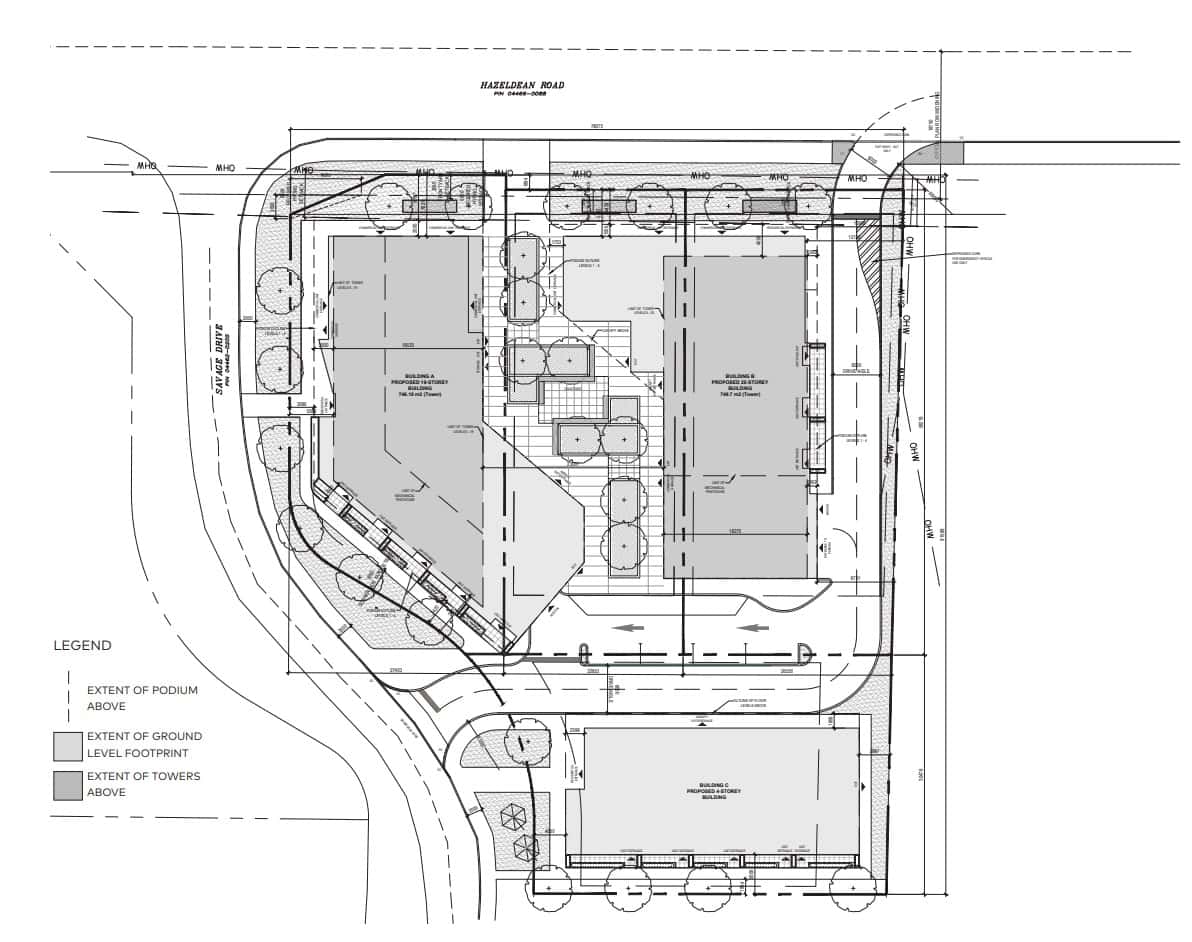
The proposal includes three new buildings on the site with a total of 456 new apartments and commercial space.
- Building A is a 19-storey mixed-use tower located in the northwest portion of the site, at the intersection of Hazeldean Road and Savage Drive. It has a total of 174 apartments and 190 square metres of at-grade commercial along Hazeldean Road.
- Building B is 25-storey mixed-use tower located in the northeast portion of the site, along Hazeldean Road and abutting 5862 Hazeldean Road. The building contains a total of 247 apartments and 249 square metres of at-grade commercial space along Hazeldean Road.
- Building C is a 4-storey low-rise apartment building located at the rear of the site, abutting 9 Savage Drive, and contains a total of 35 apartments.
The proposed development features an internal road with two vehicular accesses: a full-movement access along Savage Drive and a right-out only access along Hazeldean Road. The internal road provides access to the underground parking garage and includes a turning loop.
A total of 148 resident parking spaces and 86 visitor parking spaces proposed. All resident parking and the majority visitor spaces, 84 spaces, are located in the underground parking garage. Four visitor parking spaces are located at grade.
A total of 4,415 square metres of amenity space is provided, including 1,497 square metres of communal space and 2,918 square metres of private amenity space in the form of balconies. A public courtyard is also proposed between Buildings A and B.
The owner of the property is Hazeldean Heights Inc. and the application was submitted by their planning consultant, Fotenn Planning + Design.
Zoning By-law Amendment
The site is currently split-zoned GM14 H(11) (General Mixed-Use, Subzone 14, Maximum Height Limit of 14 metres) and R1D (Residential First Density, Subzone D). The proposed Zoning By-law Amendment seeks to rezone the whole site to GM [XXXX] (General Mixed-Use Zone, Urban Exception XXXX). The new site-specific exception addresses the following:
- Permit high-rise development.
- Reduce the minimum required rear yard setback to 5 metres.
- Increase the maximum permitted floor space index to 6.54.
- Reduce the minimum number of required residential parking spaces to 148 spaces (0.35 spaces per unit).
- Reduce the minimum number of required visitor parking spaces to 86 spaces.
- Eliminate the minimum parking requirements for commercial uses.
More information about the proposal is available on the City’s DevApps site: https://devapps.ottawa.ca/en/applications/D02-02-25-0070/details
Background
An information meeting was held on August 6, 2025 prior to the application being submitted. Changes have been made to the proposal since that meeting, including the addition of a “right-out only” access onto Hazeldean Road.
Stay informed
Register for future notifications about this application and provide your comments by contacting Colette Gorni at 613-580-2424, ext. 21239 or Colette.Gorni@ottawa.ca and including File No. D02-02-25-0070 in the subject line. You can copy Councillor Glen at glen.gower@ottawa.ca.
Deadline for comments is January 26, 2026. Please note, comments will continue to be accepted and considered after the initial comment period due date noted above. However, comments received after the above date may not be reflected in the staff report.
Angle Hazeldean et Savage : Modification du Règlement de zonage
La Ville d’Ottawa a reçu une demande de modification du Règlement de zonage pour les propriétés situées au 5872, au 5880 et au 5884, chemin Hazeldean, ainsi qu’au 7, promenade Savage, lesquelles sont situées du côté sud du chemin Hazeldean, entre la promenade Savage et la promenade Sweetnam.
La proposition prévoit l’érection de trois immeubles comportant en tout 456 logements et des locaux commerciaux.
- L’immeuble A est une tour à utilisations polyvalentes de 19 étages située dans la partie nord-ouest du site, à l’intersection du chemin Hazeldean et de la promenade Savage. Il compte 174 logements et 190 mètres carrés de locaux commerciaux au rez-de-chaussée dont la façade donne sur le chemin Hazeldean.
- L’immeuble B est une tour à utilisations polyvalentes de 25 étages située dans la partie nord-est du site, le long du chemin Hazeldean, qui jouxte le 5862, chemin Hazeldean. Il compte 247 logements et 249 mètres carrés de locaux commerciaux au rez-de-chaussée dont la façade donne sur le chemin Hazeldean.
- L’immeuble C est un immeuble d’habitation de faible hauteur à 4 étages situé à l’arrière du site, à côté du 9, promenade Savage, qui compte 35 logements.
Le projet comprend une voie interne avec dotée d’une entrée-sortie sur la promenade Savage et d’une sortie en virage à droite uniquement sur le chemin Hazeldean. La voie interne permet d’accéder au stationnement souterrain et comprend une boucle pour faire demi-tour.
En tout, 148 et 86 places de stationnement sont prévues pour les résidents et les visiteurs respectivement. Toutes les places de stationnement pour les résidents et la majorité de celles pour les visiteurs (84 places) sont situées dans le stationnement souterrain. Les quatre autres places de stationnement pour les visiteurs sont situées sur le terrain.
Le projet prévoit 4 415 mètres carrés d’aires d’agrément, dont 1 497 mètres carrés d’aires communes et 2 918 mètres carrés d’aires privées sous forme de balcons. Une cour publique est également prévue entre les immeubles A et B.
Modification du Règlement de zonage
Le site est actuellement assujetti à deux désignations de zonage : GM14 H (11) (zone d’utilisations polyvalentes générale, sous-zone 14, hauteur maximale de 14 mètres) et R1D (zone résidentielle de densité 1, sous-zone D). La modification proposée au Règlement de zonage vise à redésigner l’ensemble du site dans la catégorie GM [XXXX] (zone d’utilisations polyvalentes générale, exception urbaine XXXX). La nouvelle exception propre au site porte sur les points suivants.
- Autoriser la construction d’immeubles de grande hauteur.
- Réduire le retrait minimal requis à l’arrière de la cour à 5 mètres.
- Augmenter le rapport plancher-sol maximal autorisé à 6,54.
- Réduire le nombre minimal de places de stationnement requises pour les résidents à 148 (0,35 place par logement).
- Réduire le nombre minimal de places de stationnement requises pour les visiteurs à 86.
- Supprimer les exigences minimales en matière de stationnement pour les utilisations commerciales.
Vous trouverez de plus amples renseignements sur la proposition dans le site DemDam de la Ville : https://devapps.ottawa.ca/fr/applications/D02-02-25-0070/details
Contexte
Une réunion d’information a eu lieu le 6 août 2025 avant le dépôt de la demande. Des modifications ont été apportées à la proposition depuis cette réunion, y compris l’ajout d’une sortie en virage à droite uniquement sur le chemin Hazeldean.
Restez informé
Inscrivez-vous pour recevoir des avis au sujet de cette demande et transmettre vos observations en communiquant avec Colette Gorni au 613-580-2424, poste 21239, ou à Colette.Gorni@ottawa.ca et en inscrivant le numéro de dossier D02-02-25-0070 dans la ligne d’objet. Vous pouvez également envoyer une copie au conseiller Gower à l’adresse glen.gower@ottawa.ca.
La date limite pour soumettre vos commentaires est le 26 janvier 2026. Veuillez noter que les commentaires reçus après la date limite mentionnée ci-dessus seront acceptés et pris en considération. Toutefois, il se peut qu’ils ne soient pas pris en considération dans le rapport du personnel.





