The City of Ottawa will be improving sidewalk safety and accessibility on Rouncey Road, at the intersections of Tapadero and Westphalian.
Construction is expected to begin in November and be completed by the end of December 2025, contingent of the weather.
The work includes:
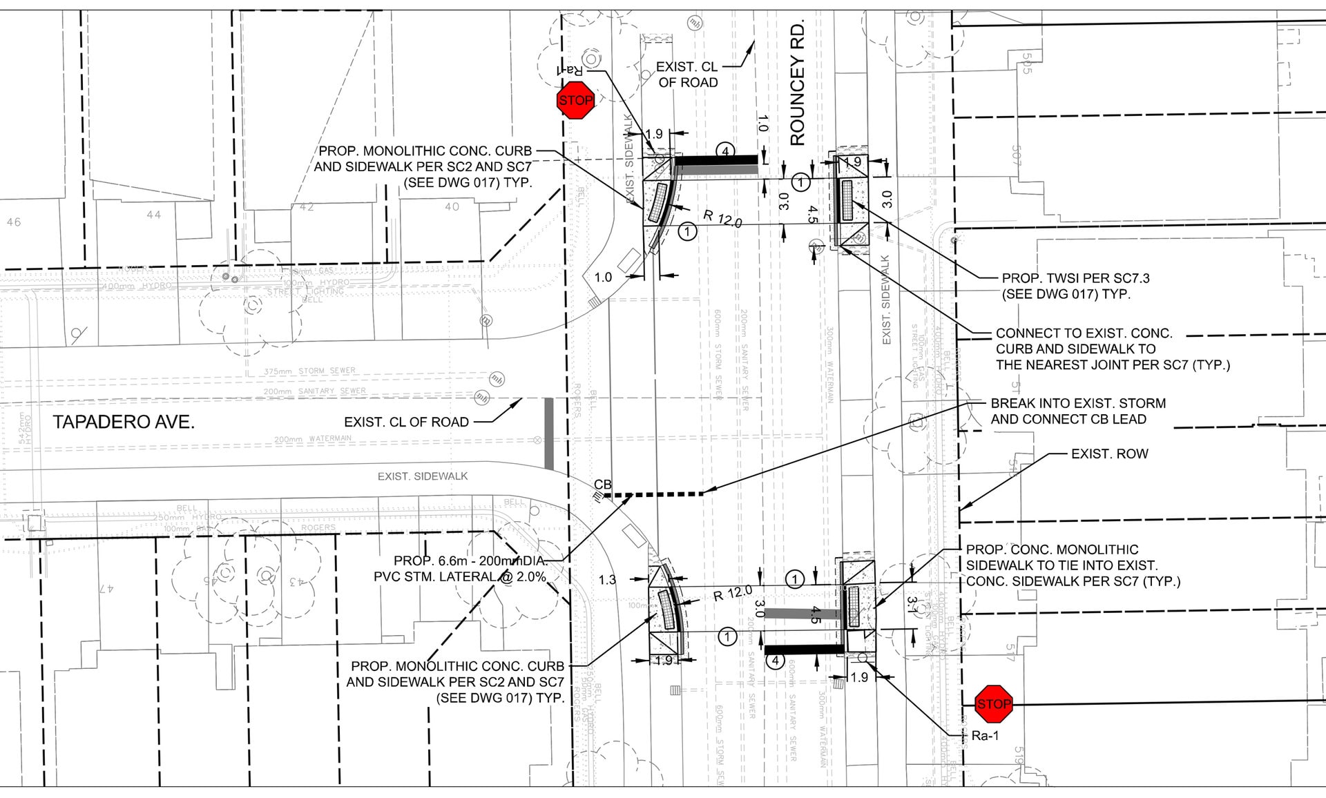
- Constructing a northern and southern pedestrian crossing completed with tactile walking surface indicators (TWSI) at the intersection of Rouncey Road and Tapadero Avenue.
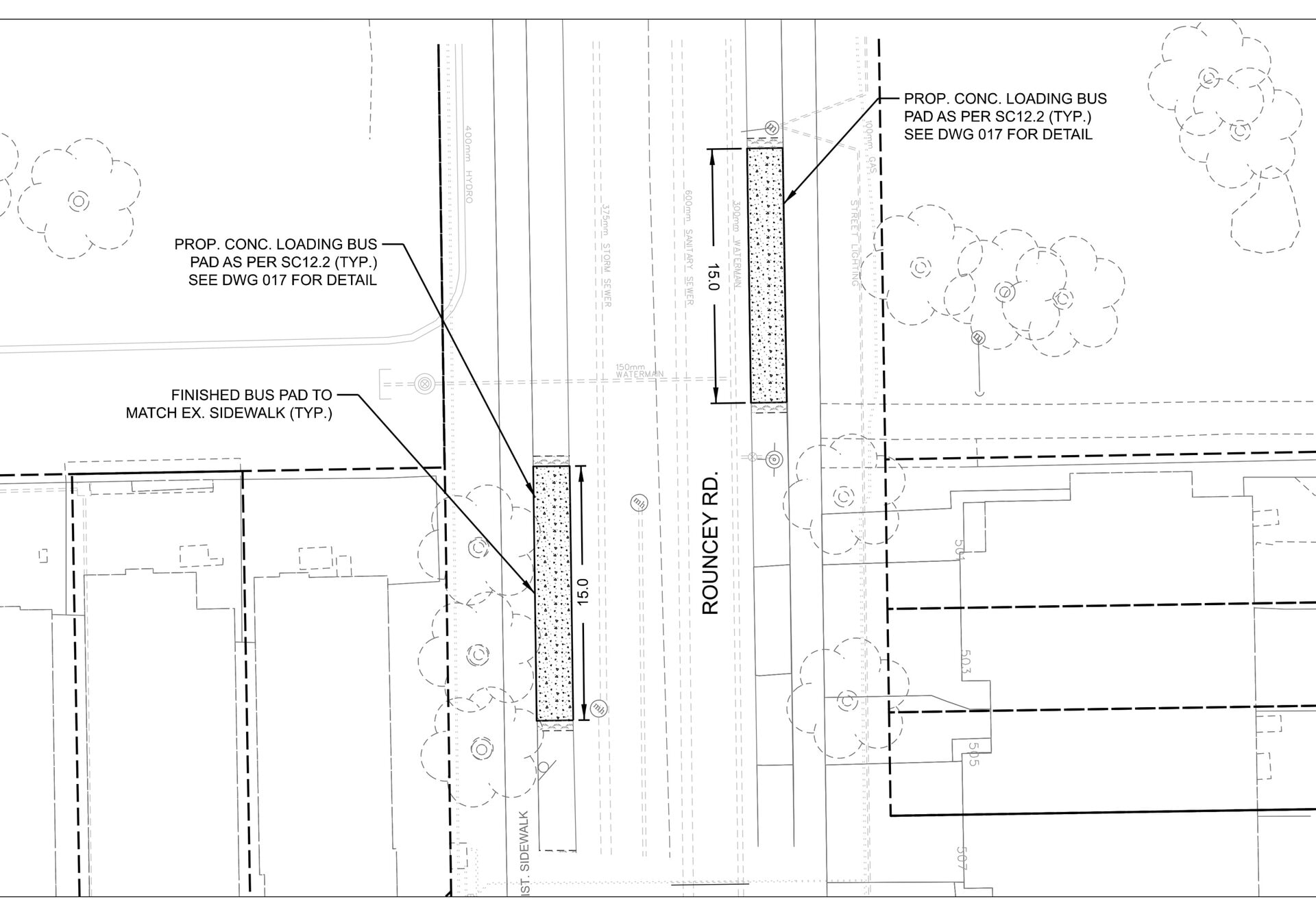
- Constructing an east side and west side bus pad north of the intersection of Rouncey Road and Tapadero Avenue.
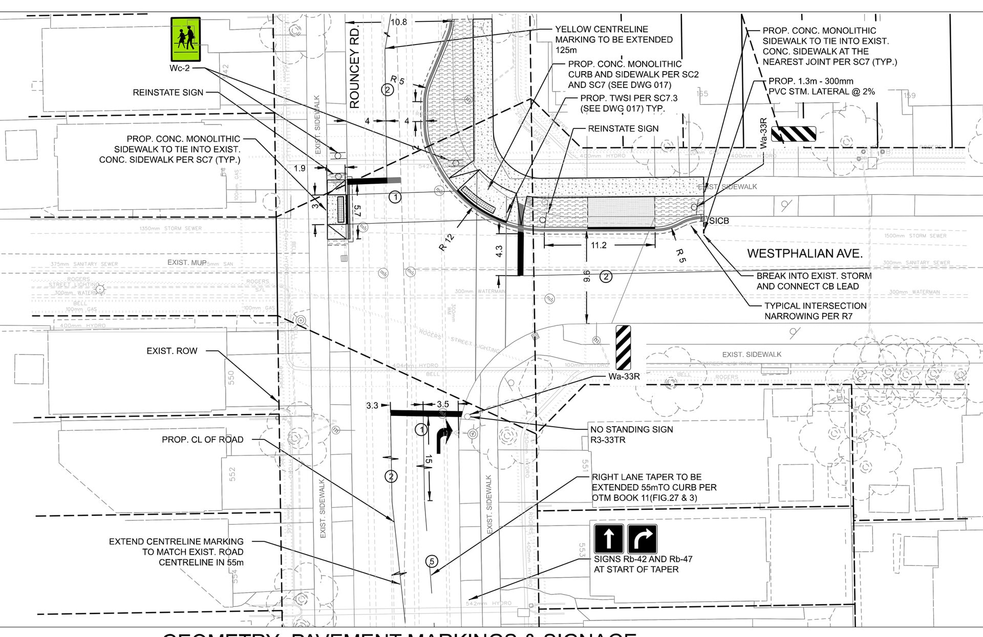
- Extending the curb and tightening the northeast corner at the intersection of Rouncey Road and Westphalian Avenue as well as implementing a new north pedestrian crossing completed with tactile walking surface indicators (TWSI) at both sides of the crossing.
- Diagrams of the plans are included below.
The City of Ottawa has retained the contractor, Ottawa Redline Construction Ltd., to complete the work.
Residents living near the construction areas will receive a written notification in their mailbox.
Accessibility is an important consideration for the City of Ottawa. The City makes every effort to provide access through and around construction sites. If you require a disability-related accommodation, please contact the undersigned. Accessible formats and communication supports are available, upon request, at the following link: www.ottawa.ca/accessibleformat
Localized lane reductions and short duration pedestrian detours can be expected at the work locations.
The contractor will take every precaution to minimize interruptions but there may be some inconvenience during the course of the work, such as traffic delays, noise and dust. You may also feel vibrations due to heavy equipment operations. Vibrations from construction activities are quite common and rarely cause any problems. We would like to thank you for your patience and co-operation.
For construction activity hours of work, the City of Ottawa follows provincial requirements and the City’s Noise By-law (2017-255).
The City of Ottawa is committed to safety in and around project sites. The project team continues to work closely with the industry and to comply with recommendations provided by municipal, provincial and federal health officials, as well as the Ministry of Labour, Immigration, Training and Skills Development.
Contact information
For any emergency outside normal working hours, please call the City at 3-1-1. For general project information, please contact the City’s Project Manager Larry Mckellop, at 613-894-0374 or larry.mckellop@ottawa.ca.
AVIS DE TRAVAUX : Rénovation des trottoirs du chemin Rouncey
La Ville d’Ottawa entamera des travaux pour améliorer la sécurité et l’accessibilité des trottoirs du chemin Rouncey aux intersections des avenues Tapadero et Westphalian.
Les travaux devraient commencer en novembre et devraient être achevés d’ici la fin décembre 2025, selon les conditions météorologiques.
Voici les travaux proposés :
- aménagement d’un passage pour piétons des côtés nord et sud, comprenant des indicateurs de surface podotactile à l’angle du chemin Rouncey et de l’avenue Tapadero;
- aménagement d’une plate-forme d’arrêt d’autobus des côtés est et ouest, au nord de l’intersection du chemin Rouncey et de l’avenue Tapadero;
- prolongement de la bordure de rue et resserrement de l’intersection à l’angle nord-est du chemin Rouncey et de l’avenue Westphalian, et aménagement d’un nouveau passage pour piétons du côté nord comprenant des indicateurs de surface podotactile des deux côtés du passage;
- des diagrammes des plans sont présentés ci-dessous.
La Ville d’Ottawa a confié à la société Ottawa Redline Construction Ltd le mandat d’exécuter les travaux.
Les résidents qui habitent près du chantier de construction recevront un avis écrit à ce sujet par la poste.
La Ville d’Ottawa accorde une grande importance à l’accessibilité. C’est pourquoi elle met tout en œuvre pour faciliter l’accès aux zones de construction et aux secteurs avoisinants. Si vous avez des besoins en raison d’un handicap, veuillez communiquer avec la personne soussignée. Des formats accessibles et des soutiens à la communication sont offerts sur demande, à l’adresse www.ottawa.ca/formataccessible.
Les travaux nécessiteront des réductions de voie à certains endroits et des déviations pour les piétons pour une courte durée près du chantier.
L’entrepreneur prendra toutes les précautions nécessaires pour limiter les perturbations, mais vous devez vous attendre à certains inconvénients pendant la durée des travaux, comme du bruit, de la poussière et un ralentissement de la circulation. Il est également possible que vous ressentiez des vibrations en raison de l’utilisation d’équipements lourds. Il s’agit d’une situation courante qui ne cause généralement pas de problème. Nous tenons à vous remercier de votre patience et de votre collaboration.
En ce qui concerne les heures d’activité du chantier, la Ville d’Ottawa suit les exigences provinciales ainsi que son Règlement sur le bruit (no 2017-255).
La Ville d’Ottawa est déterminée à assurer la sécurité à l’intérieur et aux alentours des chantiers. L’équipe responsable du projet continue de travailler en étroite collaboration avec le secteur et de respecter les recommandations émises par les autorités sanitaires municipales, provinciales et fédérales, ainsi que par le ministère du Travail, de l’Immigration, de la Formation et du Développement des compétences.
Coordonnées
Pour toute urgence en dehors des heures de travail normales, veuillez communiquer avec la Ville en composant le 3-1-1. Pour obtenir des renseignements généraux sur le projet, veuillez communiquer avec le gestionnaire de projet de la Ville, Larry Mckellop, au 613‑894‑0374 ou à larry.mckellop@ottawa.ca.


