La version française suit
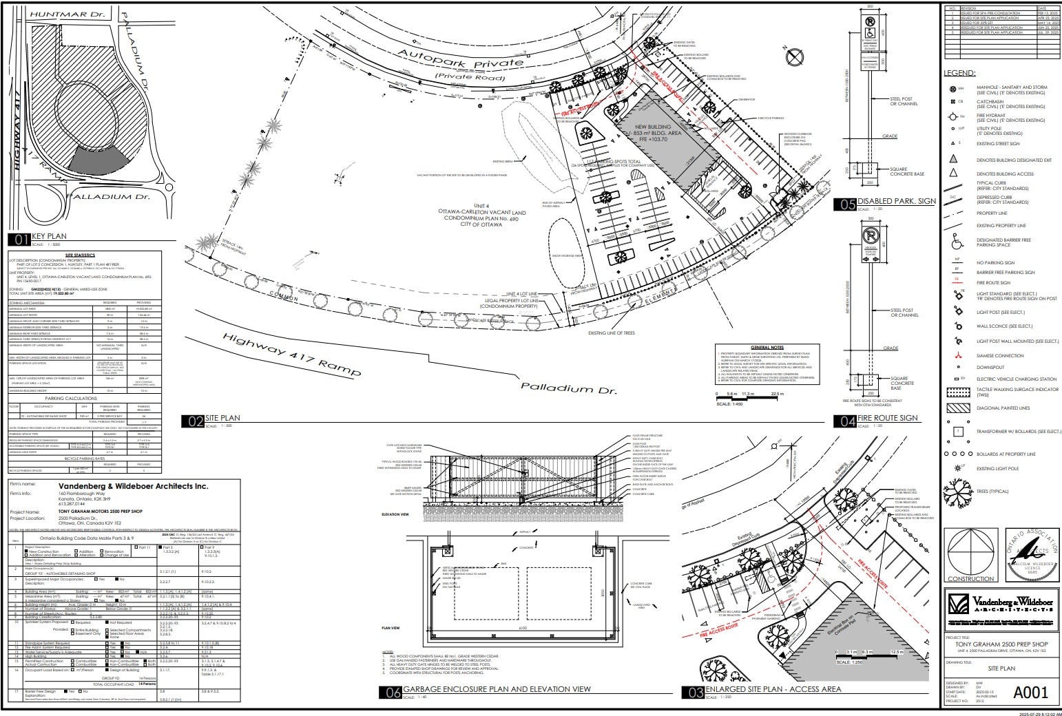
The City of Ottawa has received a Site Plan Control application for the property at 2500 Palladium, located in the southwest corner of the Palladium Auto-Park. The rear of the site backs onto Palladium Drive and the Eastbound on ramp for Highway 417. The site is currently vacant.
The application has been submitted to construct an automobile prep-shop to aid in the preparation of the sale of vehicles. The proposed building will be 10 metres in height with an approximate gross floor area of 854m2 with a mezzanine level and 13 service bays.
More information about the proposal is available on the City’s DevApps site…
What’s next
This application has not been approved. City staff will be reviewing the application to ensure it complies with applicable provincial policy and city policy and by-laws. Councillor Glen will also be reviewing this application with his team.
Note that under Bill 109 enacted by the Provincial government in 2022, City Council no longer has the final say on Site Plan Control approvals. Although councillors can provide feedback and comments, the final decision rests with City staff.
Stay informed and provide your feedback
The site plan control process allows the City to influence land development so that it is safe, functional and orderly. It is also used to ensure that the development standards approved by the City and other agencies are implemented and maintained. Building location, landscape treatment, pedestrian access, drainage control and parking layout are a few of the items addressed during review.
For additional information or to provide your comments contact planner Emily Charby at 613-580-2424, ext. 76243 or Emily.Charby@ottawa.ca. Please quote File No. D07-12-25-0090 in the subject line. You can copy Councillor Glen at glen.gower@ottawa.ca.
Please provide comments by August 19, 2025. Comments received after this date will be accepted and considered, however, may not be reflected in the staff report.
2500, promenade Palladium : Demande de réglementation du plan d’implantation
La Ville d’Ottawa a reçu une demande de réglementation du plan d’implantation pour la propriété située au 2500, promenade Palladium, située dans le coin sud-ouest du Palladium Auto Park. L’arrière du terrain donne sur la promenade Palladium et sur la bretelle d’accès en direction est de l’autoroute 417. Cette parcelle de terrain est actuellement vacante.
La demande présentée vise la construction d’un atelier de préparation d’automobiles pouvant aider à la préparation de véhicules en vue de la vente. Le bâtiment proposé aura une hauteur de 10 mètres et une superficie brute d’environ 854 m2, et comprendra une mezzanine et 13 postes de travail.
Pour en savoir plus sur cette proposition, veuillez consulter le site DemDam de la Ville :
Prochaines étapes
Cette demande n’a pas été approuvée. Le personnel de la Ville examinera la demande pour s’assurer qu’elle respecte les politiques applicables du gouvernement provincial, ainsi que les politiques et les règlements de la Ville. Le conseiller Glen Gower examinera également la demande avec son équipe.
Veuillez noter qu’en vertu du projet de loi 109 adopté par le gouvernement provincial en 2022, les conseils municipaux n’ont plus le dernier mot en ce qui concerne les approbations liées à la réglementation de plans d’implantation. Bien que les membres des conseils municipaux puissent faire des observations et fournir des commentaires, la décision finale appartient au personnel de la Ville.
Restez informés et faites-nous part de vos commentaires
Le processus de réglementation du plan d’implantation permet à la Ville d’influer sur l’aménagement du territoire afin de veiller à ce que celui-ci soit sécuritaire, fonctionnel et harmonieux. Il sert également à garantir l’application et le respect des normes d’aménagement approuvées par la Ville et d’autres organismes. L’examen porte notamment sur l’emplacement des bâtiments, le traitement du paysage, l’accès piétonnier, la régulation du drainage et la disposition des stationnements.
Pour obtenir plus d’information ou pour fournir vos commentaires, communiquez avec l’urbaniste Emily Charby au 613-580-2424, poste 76243 ou à l’adresse Emily.Charby@ottawa.ca. Veuillez inclure le numéro de dossier D07-12-25-0090 dans la ligne d’objet. Vous pouvez mettre le conseiller Glower en copie conforme à l’adresse glen.gower@ottawa.ca.
Veuillez nous faire part de vos commentaires d’ici le 19 août 2025. Les commentaires reçus après cette date seront acceptés et examinés, mais ne seront pas nécessairement pris en compte dans le rapport du personnel.

