UPDATE: City staff have approved this Site Plan Control application.
La version française suit
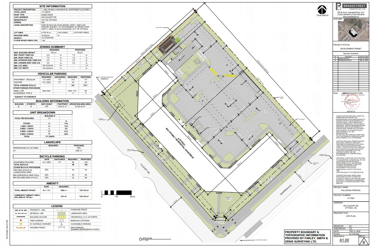
The City of Ottawa has received a Site Plan Control application for the property at 425 Culdaff Road, located at the northwest corner of the intersection of Derreen Avenue and Culdaff Road.
Broadstreet Properties Inc. is proposing to build a six-storey, U-shaped apartment building with 177 apartments, including a mix of studio, one-bedroom, two-bedroom, and three-bedroom units. A total of 212 parking spaces is provided, including 177 residential parking spaces* and 35 visitor parking spaces, located in both an underground parking garage and a surface parking lot. A total of 108 bicycle parking spaces are also provided. The site would be accessed via a driveway along Derreen Avenue.
*Please note this post has been updated to include the correct number of residential parking spaces proposed.
More information about the proposal is available on the City’s DevApps site…
Background
In January, the Committee of Adjustment approved a minor variance to permit a reduced number of resident parking spaces to 177 spaces, instead of the 212 required under the Zoning By-law. The proposed visitor parking did not require relief.
The site is designated General Mixed-Use Zone (GM), which permits the mid-rise residential use proposed and will not require any rezoning or plan amendment.
What’s next
This application has not been approved. City staff will be reviewing the application to ensure it complies with applicable provincial policy and city policy and by-laws. Councillor Glen will also be reviewing this application with his team.
Note that under Bill 109 enacted by the Provincial government in 2022, City Council no longer has the final say on Site Plan Control approvals. Although councillors can provide feedback and comments, the final decision rests with City staff.
Stay informed and provide your feedback
The site plan control process allows the City to influence land development so that it is safe, functional and orderly. It is also used to ensure that the development standards approved by the City and other agencies are implemented and maintained. Building location, landscape treatment, pedestrian access, drainage control and parking layout are a few of the items addressed during review. Issues such as building height or building use (residential versus commercial, ownership versus rental, etc.) are not a part of the site plan review.
For additional information or to provide your comments contact planner Colette Gorni at 613-580-2424, ext. 21239 or Colette.Gorni@ottawa.ca. Please quote File No. D07-12-24-0140 in the subject line. You can copy Councillor Glen at glen.gower@ottawa.ca.
Please provide comments by April 9, 2025. Comments received after this date will be accepted and considered, however, may not be reflected in the staff report.
425, chemin Culdaff – Demande de réglementation du plan d’implantation
La Ville d’Ottawa a reçu une demande de réglementation du plan d’implantation pour la propriété située au 425, chemin Culdaff, située à l’angle nord-ouest de l’intersection de l’avenue Derreen et du chemin Culdaff.
Broadstreet Properties Inc. propose de construire un immeuble d’appartements en forme de U de six étages avec 177 appartements, dont un mélange de studios, d’une chambre, de deux chambres et de trois chambres à coucher. Au total, 212 places de stationnement sont offertes, dont 117 places de stationnement résidentielles et 35 places de stationnement pour les visiteurs, situées à la fois dans un garage de stationnement souterrain et dans un stationnement de surface. Au total, 108 places de stationnement pour bicyclettes sont également aménagées. Le site serait accessible par une promenade le long de l’avenue Derreen.
Pour en savoir plus sur cette proposition, veuillez consulter le site DemDam de la Ville :
CONTEXTE
En janvier, le Comité de dérogation a approuvé une dérogation mineure pour permettre une réduction du nombre de places de stationnement pour les résidents à 177 places, au lieu des 212 places requises en vertu du Règlement de zonage. Le stationnement proposé pour les visiteurs n’avait pas besoin d’une demande de dérogation.
Le site est désigné Zone d’utilisations polyvalentes générale, ce qui permet l’utilisation résidentielle de moyenne hauteur proposée et ne nécessitera aucun changement de zonage ou modification du plan.
PROCHAINES ÉTAPES
Cette demande n’a pas été approuvée. Le personnel de la Ville examinera la demande pour s’assurer qu’elle respecte la politique applicable du gouvernement provincial, ainsi que la politique et les règlements de la Ville. Le conseiller Glen Gower examinera également la demande avec son équipe.
Veuillez noter qu’en vertu du projet de loi 109 adopté par le gouvernement provincial en 2022, les conseils municipaux n’ont plus le dernier mot en ce qui concerne les approbations liées à la réglementation du plan d’implantation. Bien que les membres des conseils municipaux puissent faire des observations et fournir des commentaires, la décision finale appartient au personnel municipal.
RESTEZ INFORMÉS ET FAITES-NOUS PART DE VOS COMMENTAIRES
Le processus de réglementation du plan d’implantation permet à la Ville d’influer sur l’aménagement du territoire afin de veiller à ce que celui-ci soit sécuritaire, fonctionnel et harmonieux. Il sert également à garantir l’application et le respect des normes d’aménagement approuvées par la Ville et d’autres organismes. L’examen porte notamment sur l’emplacement des bâtiments, le traitement du paysage, l’accès piétonnier, la régulation du drainage et la disposition des stationnements. Les questions telles que la hauteur du bâtiment ou l’utilisation du bâtiment (résidentiel ou commercial, propriété ou location, etc.) ne sont pas incluses dans l’examen du plan d’implantation.
Pour obtenir plus d’information ou pour fournir vos commentaires, communiquez avec l’urbaniste Colette Gorni au 613-580-2424, poste 21239 ou à l’adresse Colette.Gorni@ottawa.ca. Veuillez inclure le numéro de dossier D07-12-24-0140 dans la ligne d’objet. Vous pouvez mettre le conseiller Glen en copie conforme à l’adresse glen.gower@ottawa.ca.
Veuillez faire part de vos commentaires d’ici le 9 avril 2025. Les commentaires reçus après cette date seront acceptés et examinés, mais ne seront pas nécessairement pris en compte dans le rapport du personnel.

