La version française suit
The City of Ottawa has received an Official Plan Amendment application for 6070 Fernbank Road, and 5993 and 6115 Flewellyn Road (known as Stittsville South W-4) to lift the “Future Neighbourhood Overlay” and allow for the development of a residential subdivision.
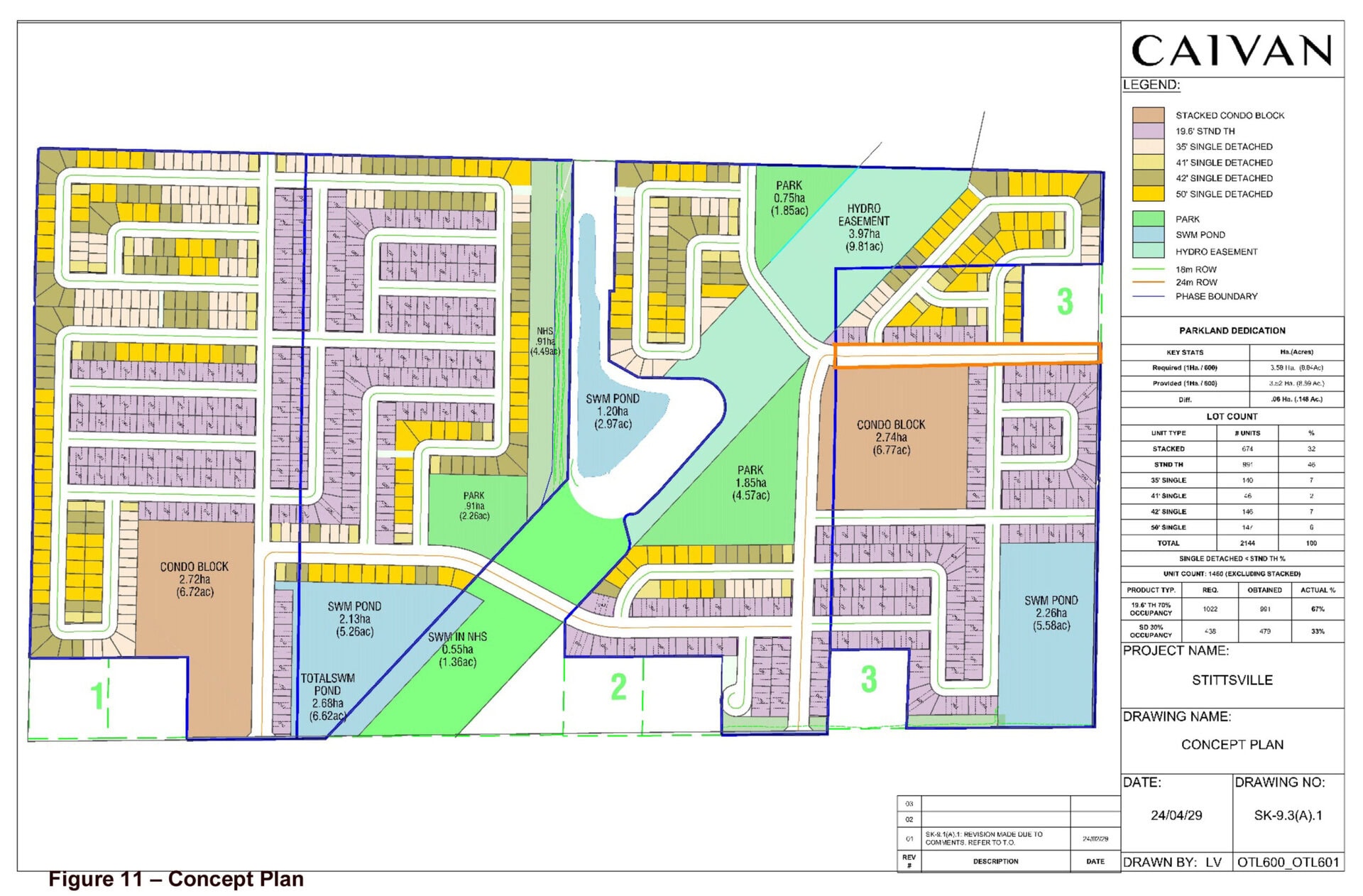
The applicant, Caivan, is proposing a residential subdivision with 1,439 homes, including detached homes, townhouses, and stacked townhouses. The proposal also includes areas for parks, environmental buffers, stormwater management ponds, and several public streets.
The site is located north of Flewellyn Road and west of Shea Road and is one of the new urban expansion areas identified in the Official Plan. It abuts an existing low-rise residential neighbourhood to the north (Edenwylde and Rathwell Landing) and rural estate lots along Poplarwood Avenue and Forestgrove Drive to the west. To the east and south, there are existing agricultural and vacant lands. The site has an approximate area of 65 hectares and is currently vacant with some forested areas. The hydro corridor crosses through the site and the existing Davidson stormwater management pond is located within the centre of the lands.
There are also several private residential properties along Flewellyn Road that is also subject to the Future Neighbourhood Overlay and will be considered for removal as part of this Official Plan Amendment application.
This land is located entirely within Ward 21 (Rideau-Jock), but given its proximity to Ward 6 (Stittsville) we’re sharing this summary for Stittsville residents.
More information about the proposal is available on the City’s DevApps site…

Background
In 2022, the Province and the City approved a new Official Plan that identified growth areas for future housing, including the area identified in this application. These new growth areas were subject to a Future Neighbourhood Overlay, which would be lifted following a secondary planning process.
Existing conditions reports for this area were completed in 2024. These reports included two public open house sessions where the applicant presented the existing conditions, gathered public feedback, and showed a high-level concept plan, along with the servicing and mobility network configurations.
Since then, the applicant has completed the draft Master Servicing Study, Environmental Impact Study, and Transportation Report, and has now submitted an Official Plan Amendment application to lift the Future Neighbourhood Overlay.
What’s next
This amendment has not been approved. City staff will be reviewing the application to ensure it complies with applicable provincial policy and city policy. Councillor Glen will also be reviewing this application with his team.
After the Official Plan Amendment application is approved, a Zoning By-law Amendment and a Plan of Subdivision application will also be required to finalize the detailed design of the proposed development.
Stay informed and share your feedback
For additional information or to provide your comments contact planner Stream Shen at 613-580-2424, ext. 24488 or stream.shen@ottawa.ca. Please quote File No. D01-01-24-0024 in the subject line. You can copy Councillor Glen at glen.gower@ottawa.ca.
Please provide comments by February 24, 2025. Comments received after this date will be accepted and considered, however, may not be reflected in the staff report.
6070, chemin Fernbank, et 5993 et 6115, chemin Flewellyn (Stittsville-Sud W-4) : demande de modification du Plan officiel
La Ville d’Ottawa a reçu une demande de modification du Plan officiel visant le 6070, chemin Fernbank ainsi que les 5993 et 6115, chemin Flewellyn (biens-fonds connus sous l’appellation de Stittsville-Sud W-4), ayant pour objet de supprimer la « surzone des quartiers projetés » et de permettre l’aménagement d’un lotissement résidentiel.
Le requérant, la firme Caivan, propose de créer un lotissement résidentiel comprenant 1 439 habitations isolées, en rangée et en rangée superposées. Ce projet comprend également l’aménagement de parcs, de zones tampons environnementales, de bassins de rétention des eaux pluviales et de plusieurs rues publiques.
L’emplacement, situé au nord du chemin Flewellyn et à l’ouest du chemin Shea, constitue l’une des nouvelles zones d’expansion urbaine désignées dans le Plan officiel. Il est contigu à un secteur résidentiel de faible hauteur au nord (lotissements Edenwylde et Rathwell) et à des lotissements ruraux le long de l’avenue Poplarwood et de la promenade Forestgrove à l’ouest. À l’est et au sud, on peut apercevoir des terrains agricoles et vacants. Couvrant une superficie d’environ 65 hectares, il est actuellement vacant et recouvert de quelques zones boisées. Un couloir de transport de l’électricité le traverse et le bassin de rétention des eaux pluviales Davidson s’étend au milieu.
En outre, plusieurs propriétés résidentielles privées longeant le chemin Flewellyn sont visées par la surzone des quartiers projetés qui serait supprimée dans le cadre de cette demande de modification du Plan officiel.
Ce bien-fonds se trouve entièrement dans le quartier 21 (Rideau-Jock) mais compte tenu de sa proximité du quartier 6 (Stittsville), le présent résumé sera également fourni aux résidents de Stittsville.
Pour en savoir plus sur cette proposition, veuillez consulter le site DemDam de la Ville.
CONTEXTE
En 2022, le gouvernement provincial et la Ville ont approuvé un nouveau Plan officiel qui désigne des secteurs pouvant accueillir la future croissance résidentielle, y compris celui faisant l’objet de la présente demande. Ces nouveaux secteurs de croissance ont été assortis d’une surzone des quartiers projetés, appelée à être supprimée au terme du processus de planification secondaire.
Des rapports sur les conditions existantes dans ce secteur ont été réalisés en 2024. Ces rapports ont fait l’objet de deux réunions portes ouvertes, au cours desquelles le requérant a pu présenter les conditions existantes, recueillir les commentaires des membres du public et proposer un plan conceptuel de haut niveau ainsi que des configurations de viabilisation et de réseau de mobilité.
Depuis, le requérant a réalisé une ébauche d’étude directrice de viabilisation, une étude sur les répercussions environnementales et un rapport sur les transports. Il a en outre présenté une demande de modification du Plan officiel ayant pour objet de supprimer la surzone des quartiers projetés.
PROCHAINES ÉTAPES
Cette modification n’a pas été approuvée. Le personnel de la Ville examinera la demande pour s’assurer qu’elle respecte la politique applicable du gouvernement provincial et la politique de la Ville. Le conseiller Glen Gower examinera également la demande avec son équipe.
Une fois la demande de modification du Plan officiel approuvée, des demandes de modification du Règlement de zonage et de plan de lotissement seront également nécessaires pour finaliser la conception détaillée de l’aménagement proposé.
RESTEZ INFORMÉS ET FAITES-NOUS PART DE VOS COMMENTAIRES
Pour en savoir plus ou transmettre vos commentaires, communiquez avec Stream Shen, urbaniste, au 613-580-2424, poste 24488, ou à l’adresse stream.shen@ottawa.ca, en prenant soin d’indiquer en objet le numéro de dossier D01-01-24-0024. Vous pouvez mettre le conseiller Glen Gower en copie conforme (glen.gower@ottawa.ca)
Veuillez transmettre vos commentaires au plus tard le 24 février 2025. Les commentaires reçus après cette date seront acceptés et examinés, mais pas nécessairement pris en compte dans le rapport du personnel.