La version française suit
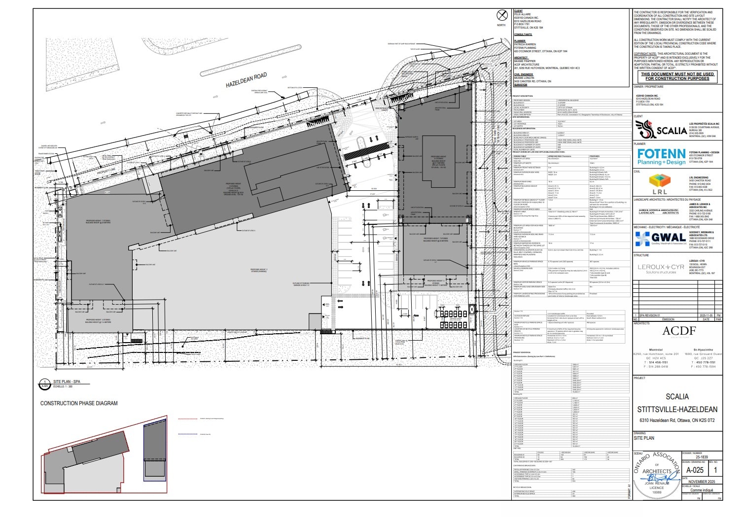
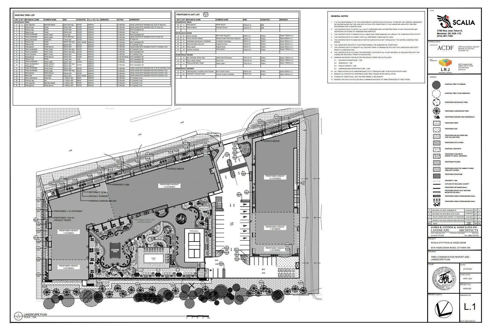
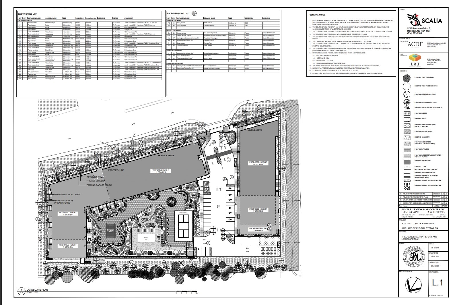
The City of Ottawa has received Minor Zoning By-law Amendment and Site Plan Control applications related to the development of two high-rise buildings at 6310 and 6320 Hazeldean Road. The development proposes to include 457 residential units, 553 vehicle parking spaces and 462 bicycle parking spaces.
The site is currently vacant and is located on the south side of Hazeldean Road, west of Carp Road and east of West Ridge Drive.
More information is available on the City’s DevApps site:
Background
In 2024, City Council approved a Zoning By-law Amendment to permit high-rise development on the site with two high-rise buildings 12 and 21 storeys in height and a total of 441 residential units. A total of 389 resident parking spaces, 86 visitor parking spaces and 446 bicycle parking spaces were proposed.
Minor Zoning By-law Amendment
As the building design and detailed engineering progressed, the applicant made modifications to the proposed development. The buildings remain at 21 and 12 storeys in height, however a minor zoning bylaw amendment is required to address technical changes to setbacks, stepbacks, building height (low-rise portion only), landscape buffers, projections, tower separation and driveway width.
The required amendments include:
- Reduce the minimum front yard setback to 0.3 metres from 3 metres due to the projection of the underground garage above-ground. (The buildings containing residential units continue to respect the 3 metres setback requirement.)
- Reduce the minimum interior side yard setback to 0.2 metres from 3 metres due to the projection of the underground garage above-ground. (The building containing residential units continues to respect the 3 metre setback requirement.)
- Reduce the rear yard setback to 8.2 metres from 10 metres for a length of 52.5 metres due to the projection of the underground garage above-ground.
- Reduce the minimum width of a landscaped area abutting the rear lot line to 8.2 metres for a length of 52.5 metres due to the projection of the underground garage above-ground.
- Increase the maximum permitted building height from 0 metres to 1.8 metres within Area F for the portion of the underground parking garage that projects above-ground.
- Remove the requirement for a 1.5 metre setback above the 4th storey on Building 2 (21-storey building).
- Remove the requirement for a 1.5 metre setback above the fourth 4th storey for part of the high-rise portion of Building 1 (12-storey building) and permit the provided 1.5 setback to be located above the 6th storey whereas it is currently required to be provided above the 4th storey.
- Increase the maximum permitted height from 11 metres to 11.5 metres within Area D due to the grading on the site. This portion of the building continues to respect the 3-storey maximum permitted height.
- Decrease the minimum tower separation to 17 metres from 19 metres at the closest point between towers. The reduced tower separation will apply for only a portion of the interface of the two towers, increasing as you get closer to Hazeldean Road.
- Increase the maximum permitted projection of ornamental elements such as sills, belt courses, cornices, parapets and pilasters to 1 metre for Building 1 and 2.2 metres for Building 2, whereas Section 65 of the Zoning By-law permits a maximum projection of 0.6 metres.
- Increase the maximum permitted driveway width for a double traffic lane accessing more than 20 parking spaces to 16.0 metres from 6.7 metres.
Site plan control application
A site plan control application has also been submitted. The revised development proposes to include 457 residential units (248 units in the 12-storey Building 1 and 209 units in the 21-storey Building 2). The development will provide 461 residential parking spaces, 92 visitor parking spaces and 462 bicycle parking within the parking garage and in surface parking areas.
What’s next
This application has not been approved. City staff will be reviewing the application to ensure it complies with applicable provincial policy and city policy and by-laws. Councillor Glen will also be reviewing this application with his team.
The Minor Zoning By-law Amendment will be considered under the City’s new Staff delegated authority for Minor Zoning By-law Amendments, and does not require committee or council approval. Councillors have the ability to remove delegated authority.
Note that under Bill 109 enacted by the Provincial government in 2022, City Council no longer has the final say on Site Plan Control approvals. Although Councillors can provide feedback and comments, the final decision rests with City staff.
Stay informed and provide your feedback
The site plan control process allows the City to influence land development so that it is safe, functional and orderly. It is also used to ensure that the development standards approved by the City and other agencies are implemented and maintained. Building location, landscape treatment, pedestrian access, drainage control and parking layout are a few of the items addressed during review. Please note that issues such as building height or building use (residential versus commercial, ownership versus rental, etc.) are not a part of a site plan review.
For additional information or to provide your comments contact planner Kimberley Baldwin at 613-580-2424, ext. 23032 or Kimberley.Baldwin@ottawa.ca. Please quote File Nos. D02-02-25-0063 and D07-12-25-0121 in the subject line. You can copy Councillor Glen at glen.gower@ottawa.ca.
Please provide comments by December 15, 2025. Comments received after this date will be accepted and considered, however, may not be reflected in the staff report.
6310 et 6320, chemin Hazeldean : Demandes de modification mineure du Règlement de zonage et d’approbation du plan d’implantation
La Ville d’Ottawa a reçu des demandes de modification mineure du Règlement de zonage et d’approbation du plan d’implantation relativement à la construction de deux immeubles de grande hauteur aux 6310 et 6320, chemin Hazeldean. Le projet prévoit 457 unités d’habitation, 553 places de stationnement pour véhicules et 462 places de stationnement pour vélos.
Le site, actuellement vacant, se trouve sur le côté sud du chemin Hazeldean, à l’ouest du chemin Carp et à l’est de la promenade West Ridge.
Pour en savoir plus, rendez-vous sur la page de la Ville consacrée aux demandes d’aménagement :
- Demande de modification mineure du Règlement de zonage;
- Demande d’approbation du plan d’implantation.
Contexte
En 2024, le Conseil municipal a approuvé la demande de modification du Règlement de zonage visant à permettre la construction de deux immeubles de 12 et 21 étages comprenant au total 441 unités d’habitation. Le projet prévoyait 389 places de stationnement pour les résidentes et résidents, 86 places pour les visiteurs et 446 places pour vélos.
Modification mineure du Règlement de zonage
Durant les phases de conception architecturale et de conception technique détaillée, le requérant a apporté plusieurs modifications au projet. Le nombre d’étages ne change pas, mais une modification mineure du Règlement de zonage est nécessaire relativement aux retraits, aux marges de recul, à la hauteur de bâtiment (pour la partie basse seulement), aux zones tampons paysagères, aux saillies, à la distance de séparation entre les tours et à la largeur de l’entrée de cour.
Voici les modifications requises :
- Réduire le retrait minimal de cour avant de 3 mètres à 0,3 mètre en raison de la saillie en surface du garage de stationnement souterrain. (Les bâtiments comptant des unités d’habitation respectent toujours l’exigence de retrait de 3 mètres.)
- Réduire le retrait minimal de cour latérale intérieure de 3 mètres à 0,2 mètre en raison de la saillie en surface du garage de stationnement souterrain. (Le bâtiment comprenant des unités d’habitation respecte toujours l’exigence de retrait de 3 mètres.)
- Réduire le retrait minimal de cour arrière de 10 à 8,2 mètres, pour une longueur de 52,5 mètres, en raison de la saillie en surface du garage de stationnement souterrain.
- Réduire la largeur minimale de l’espace paysagé adjacent à la ligne de lot arrière à 8,2 mètres, pour une longueur de 52,5 mètres, en raison de la saillie en surface du garage de stationnement souterrain.
- Augmenter la hauteur maximale autorisée du bâtiment de 0 à 1,8 mètre dans le secteur F pour la partie saillante en surface du garage de stationnement souterrain.
- Supprimer l’exigence de retrait de 1,5 mètre au-dessus du 4e étage du bâtiment 2 (21 étages).
- Supprimer l’exigence de retrait de 1,5 mètre au-dessus du 4e étage pour une section de la partie haute du bâtiment 1 (12 étages), et autoriser le déplacement du retrait (1,5 mètre) au-dessus du 6e étage au lieu du 4e.
- Augmenter la hauteur maximale autorisée de 11 à 11,5 mètres dans le secteur D en raison du nivellement du site. Cette partie du bâtiment respecte toujours la hauteur maximale autorisée de 3 étages.
- Réduire la distance de séparation minimale de 19 à 17 mètres au point le plus proche entre les tours. Cette réduction ne concerne qu’une partie de la jonction entre les deux tours. La distance s’élargit à mesure qu’on avance vers le chemin Hazeldean.
- Augmenter la saillie maximale autorisée des éléments ornementaux (seuils, cordons, corniches, parapets, pilastres, etc.) de 0,6 mètre, selon l’article 65 du Règlement de zonage, à 1 mètre pour le bâtiment 1 et à 2,2 mètres pour le bâtiment 2.
- Augmenter la largeur maximale autorisée de l’entrée de cour de 6,7 à 16 mètres en vue de l’aménagement d’une double voie de circulation donnant accès à plus de 20 places de stationnement.
Demande d’approbation du plan d’implantation
Une demande d’approbation du plan d’implantation a également été présentée. Le projet révisé prévoit 457 unités d’habitation (248 dans le bâtiment 1 de 12 étages, et 209 dans le bâtiment 2 de 21 étages). Seront également créées 461 places de stationnement pour les résidentes et résidents, 92 places pour les visiteurs et 462 places pour vélos dans le garage et les aires de stationnement en surface.
Prochaines étapes
Cette demande n’a pas été approuvée. Elle sera examinée par le conseiller Glen Gower et son équipe ainsi que par le personnel de la Ville, qui s’assurera qu’elle respecte les politiques provinciales ainsi que les politiques et règlements municipaux applicables.
La modification mineure du Règlement de zonage ne nécessite pas l’approbation du Comité ni du Conseil. Elle sera examinée par le personnel, conformément aux nouveaux pouvoirs qui lui sont délégués, à moins qu’ils ne soient révoqués par les conseillères et conseillers.
Veuillez noter que, conformément au projet de loi 109 adopté par le gouvernement provincial en 2022, les conseils municipaux n’ont plus le dernier mot concernant l’approbation des plans d’implantation. Les conseillères et conseillers peuvent formuler des observations et des commentaires, mais la décision finale revient au personnel municipal.
Renseignements et commentaires
Le processus d’approbation du plan d’implantation permet à la Ville d’influer sur l’aménagement du territoire pour qu’il soit sûr, fonctionnel et harmonieux. Il sert également à garantir l’application des normes d’aménagement approuvées par la Ville et d’autres organismes. L’examen porte notamment sur l’emplacement des bâtiments, le traitement du paysage, l’accès piétonnier, la régulation du drainage et l’aménagement du stationnement. Il ne porte pas sur les questions relatives à la hauteur ou à l’utilisation du bâtiment (résidentiel ou commercial, propriété ou location, etc.).
Pour en savoir plus ou formuler des commentaires, communiquez avec Kimberley Baldwin, urbaniste, au 613-580-2424, poste 23032 ou par courriel à Kimberley.Baldwin@ottawa.ca, en mentionnant dans l’objet les numéros de dossier D02-02-25-0063 et D07-12-25-0121. Vous pouvez mettre en copie le conseiller Glen Gower (glen.gower@ottawa.ca).
Vous avez jusqu’au 15 décembre 2025 pour nous faire parvenir vos commentaires. Les commentaires reçus après cette date seront acceptés et examinés, mais ne seront pas nécessairement pris en compte dans le rapport du personnel.





